$439,900 Sale
Listed 70 days ago
6411 63 Street
· 3
· 2.50
· -
· 1260.03
Key Facts
Key facts for 6411 63 Street
Property Type
House, 2 Storey
Parking
Parking Pad Cement/Paved , Parking Pad Cement/Paved
MLS®
E4449455
Size
1260.03 sqft
Basement
Full,Unfinished, Unfinished
Listed on
-
Lot size
-
Tax
-
Days on Website
-
Year Built
2025
Maintenance Fee
-
Description
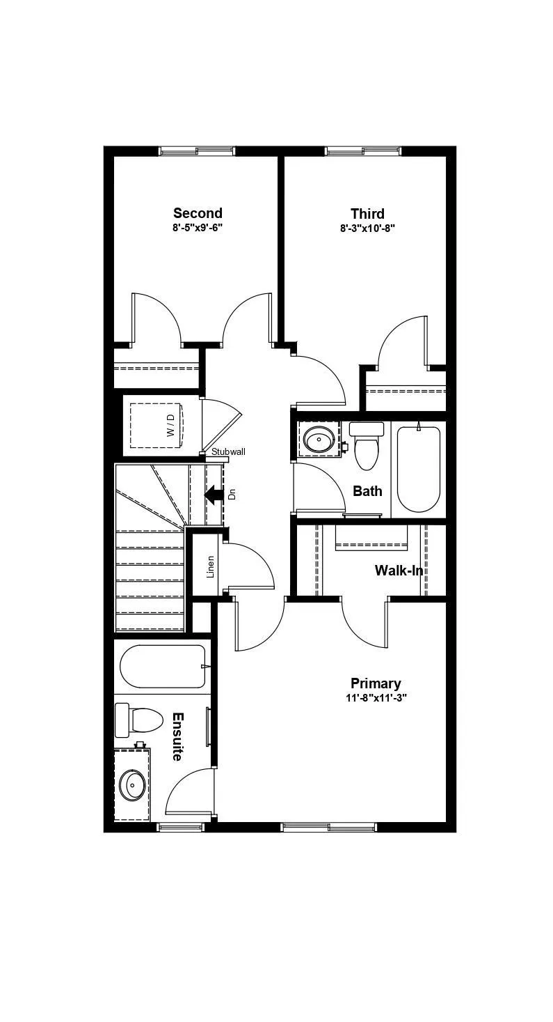
Introducing brand NEW 2 storey home in the desirable community of Dansereau Meadows in Beaumont built by Anthem. This beautiful home offers, 3 Bedrooms, Quartz Counter Tops, Kitchen Appliances, Vinyl Flooring on main floor, in bathrooms, in laundry room and Carpet on Upper Floor. Convenient Upper Fl...oor Laundry, Stunning lighting fixtures, Large dining area, bright living room. Open concept main floor maximizes space.*Home is still under construction. *Photos of previous build, interior colors are represented. *Actual colors and upgrades may vary.
Similar Properties (No results)
Courtesy of: Basar Ozgun, CIR Realty